Wisteria Park Gardens, Thirsk, North Yorkshire, YO7 1TW
Property Summary
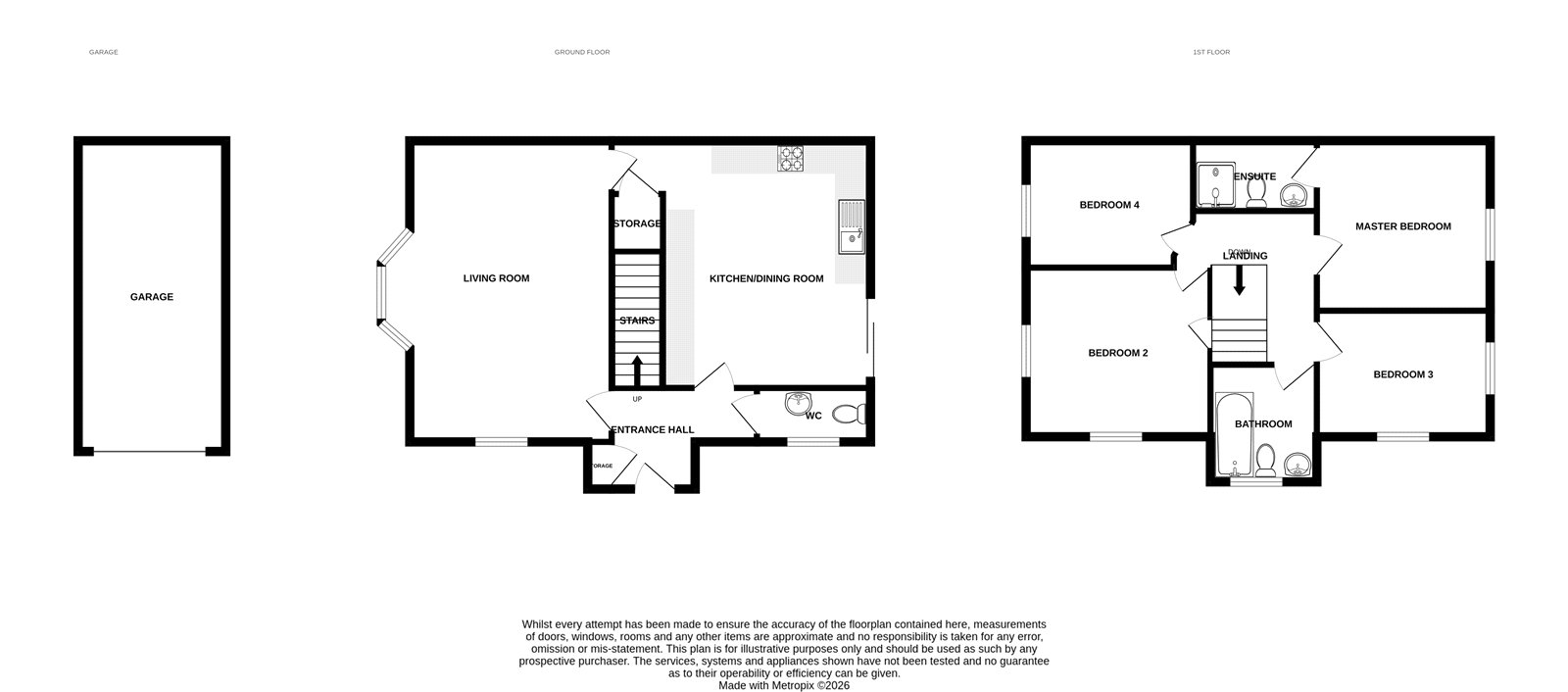
The ground floor consists of a welcoming entrance hallway, downstairs W/C, living room, and a beautiful kitchen/dining room.
The first floor holds four well-proportioned bathrooms, three of which share a family bathroom suite, whilst the master boasts its own en-suite.
Externally you have a low maintenance rear garden with an even proportion of patio space and the rest laid to lawn.
The property further benefits from a garage, and driveway parking for multiple cars.
Council Tax Band D - North Yorkshire Council
EPC Rating - B
Full Details
Situation
Tucked away in a quiet cul-de-sac within the sought-after market town of Thirsk, Wisteria Park Gardens is a small, exclusive development just a short walk from the town centre. Residents benefit from easy access to local shops, cafés and amenities, while enjoying a peaceful, private setting ideal for modern living.
Directions
From Thirsk Market Place, proceed south-west along Westgate. Continue straight ahead onto Station Road, following signs towards the railway station. After a short distance, turn left into the residential area (near Turkhan Close), where Wisteria Park Gardens can be found tucked away just off the main road.
The development sits in a small, private cul-de-sac, set back from Station Road and within easy walking distance of the town centre.
The Accommodation Comprises
Entrance Hallway 1.94 x 2.80
Laminate flooring, radiator, storage cupboard.
W/C 1.04 x 2.19
Tiled flooring, W/C, radiator, basin, double glazed window.
Living Room 5.81 x 3.98
Laminate flooring, 2x radiators, double glazed window & a double glazed bay window.
Kitchen/Dining Room 5.15 x 4.61
Tiled flooring, radiator, storage cupboard, worktops, cupboards, fitted appliances, splashbacks, boiler, sliding doors to back garden.
Stairs & Landing 3.48 x 3.01
Carpet, radiator, banister, loft hatch.
Bedroom 1 3.18 x 3.28
Carpet, radiator, double glazed window, access to en-suite.
En-Suite 2.67 x 1.21
Tiled flooring, part tiled walls, shower, W/C, basin, towel radiator.
Bedroom 2 3.54 x 3.26
Carpet, radiator, 2x double glazed windows, built in cupboard.
Bedroom 3 2.43 x 3.17
Carpet, radiator, 2x double glazed windows.
Bedroom 4 2.45 x 3.22
Carpet, radiator, double glazed window.
Bathroom 2.29 x 2.27
Tiled flooring, part tiled walls, bath with shower, W/C, basin, towel radiator.
External
Garage 6.00 x 2.98
Concrete flooring, lights & power.
Front
Lawn & access to driveway.
Side
Driveway for 3 vehicles, side gate to garden & access to garage.
Back
Lawn, patio, fenced off for privacy.
Material Information
The following information should be read and considered by any potential buyers prior to making a transactional decision:
SERVICES: We are advised by the seller that the property has mains provided gas, electricity, water and drainage.
MAINTENANCE / SERVICE CHARGE: No
WATER METER: Yes
PARKING ARRANGEMENTS: Driveway parking for 3 vehicles & Garage.
BROADBAND SPEED:
The maximum speed for broadband in this area is shown by inputting the postcode at the following at the following link here https://www.broadbandcheck.co.uk/
ELECTRIC CAR CHARGER: No
MOBILE PHONE SIGNAL: No known issues.
The information above has been provided by the seller and has not yet been verified at this point of producing this material. There may be more information related to the sale of this property that can be made available to any potential buyer.
Clauses
1/ James Winn Estate Agents has not tested any services, appliances or heating and no warranty is given or implied as to their condition. 2/ All measurements are approximate and intended as a guide only. All our measurements are carried out using a regularly calibrated laser tape but may be subject to a margin of error. 3/ We believe the property is freehold but we always recommend verifying this with your solicitor should you decide to purchase the property. 4/ Fixtures and fittings other than those included in the above details are to be agreed with the seller through separate negotiation. 5/ All EPC`s are generated by a third party and James Winn Ltd accepts no liability for their accuracy. 6/ The Floorplans that are provided are purely to give an idea of layout and as such should not be relied on for anything other than this. It is highly likely the plans do not show cupboards, indents, fireplaces or recesses and are not drawn to scale or with doors, staircases and windows in the correct scale or position. Buyers must satisfy themselves of any size or shape before committing to any expense. Terms of Website Use Information provided on our website is for general information only. It may not be wholly accurate, complete or up-to-date and should not be relied upon. Intellectual Property The copyright and other intellectual property rights in our website & brochures are owned by us or our licensors. All rights are expressly reserved. Unauthorised use By accessing our site, you agree not to attempt to gain any unauthorised access or to do anything which may interfere with the functionality or security of our site.
Mortgage & Financial Services
James Winn Estate Agents are keen to stress the importance of seeking independent mortgage advice. If you are in need of mortgage advice our team will be pleased to make you an appointment with an independent mortgage advisor based. Call 01609 777125 or 01845 524488. (Remember your home is at risk if you do not keep up repayments on a mortgage or other loans secured on it ).Minimum age 18.



































